Działka na sprzedaż Wrocław, Krzyki, Aleja Róż

402.00 m²
1 194,03 zł/m2
OTO-GS-29984

480 000 zł

Działka na sprzedaż
sprzedane

Szczegóły oferty

Symbol oferty OTO-GS-29984
Powierzchnia 402,00 m²
Przeznaczenie działki budowlana
Wymiary działki 16 m
Zagosp. działki niezagospodarowana
Ukształtowanie działki płaska
Kształt działki prostokąt
Gaz jest
Woda jest
Prąd jest
Kanalizacja miejska
Magdalena Sikorska-Góral

Magdalena Sikorska-Góral

Specjalista ds.nieruchomości
Nr licencji: 26729

Napisz wiadomość Więcej ofert

Opis nieruchomości

Krzyki-Brochów/ działka budowlana z pozwoleniem na budowę i projektem budowlanym. 


Polecam na sprzedaż działkę położoną na Krzykach na osiedlu Brochów przy ul. Alei Róż. 


Działka usytuowana między już istniejącą zabudową willową w spokojnej i zielonej części miasta.


Zielona okolica, liczne zrewitalizowane zielone skwery, Park Brochowski i Bieńkowicki liczne ścieżki piesze i rowerowe. 

Na Brochowie liczne sklepy, kawiarnie, piekarnie, szkoła podstawowa, dwa publiczne przedszkola i nie tylko, przychodnie opieki zdrowotnej, Aqua Park Brochów z siłownią i basenem letnim. 


Dogodny dojazd do centrum miasta oraz 5 minut do AOW. 

Kilka minut pieszo do przystanku autobusowego linii 114, 125 i 133 oraz do stacji kolejowej Wrocław-Brochów ( pociąg jedzie do Dworca Głównego 5-6 minut).

Przy działce wszystkie media: woda, prąd, gaz, kanalizacja.

Spokojne sąsiedztwo. 

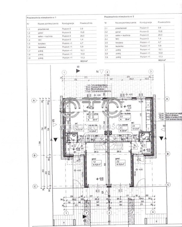
Dla klientów zainteresowanych, w biurze dostępny projekt budowlany, rzuty, wizualizacje wraz z pozwoleniem na budowę. 

Uzyskano prawomocne pozwolenie na budowę "bliźniaka", możliwość zmiany pozwolenia na budowę na dom wolnostojący jednorodzinny. Możliwość zmiany powierzchni domu na większy ( dodatkowa kondygnacja pod dach spadzisty). 


Cena 480 000 złotych.

SERDECZNIE ZAPRASZAM NA PREZENTACJĘ

WYŁĄCZNOŚĆ !!!

OTO NIERUCHOMOŚCI

Magdalena Sikorska-Góral: tel. 881 474 136
e-mail: magda@oto-oto.pl

Numer licencji zawodowej: 26726


Zapraszamy na Naszą oficjalną stronę biura OTO NIERUCHOMOŚCI
Pomagamy w sfinansowaniu zakupu nieruchomości!!! Współpracujemy z niezależnymi, doświadczonymi doradcami finansowymi, którzy przeanalizują i wybiorą dla Państwa indywidualną, najkorzystniejszą ofertę kredytową spośród czołowych 22 banków - w jednym miejscu - podczas jednego spotkania.
Więcej informacji na naszej stronie .
-----------------------------------------------------------------------------------------------------------------------
- Współpracujemy z doświadczonymi i kreatywnymi firmami z branży wykończenia oraz aranżacji wnętrz. Nasi specjaliści oferują zróżnicowany wachlarz usług: od realizacji poszczególnych fragmentów wykończenia po kompleksowe wyposażenie nieruchomości pod klucz. Każdy z projektów dopasowany jest do indywidualnych potrzeb naszych Klientów.
-----------------------------------------------------------------------------------------------------------------------
- Oferty zamieszczone na stronie internetowej przygotowywane są na postawie oględzin nieruchomości oraz informacji uzyskanych od właściciela. Weryfikujemy je i sprawdzamy, jednak wszelkie informacje w nich zawarte mogą ulegać aktualizacji, w związku z czym nie stanowią oferty w rozumieniu Kodeksu Cywilnego, a dane w nich zawarte mają jedynie charakter informacyjny. 
 

Lokalizacja nieruchomości

Kalkulatory

Kalkulator kredytowy

Wysokość raty

PLN
%

Specjalista ds.nieruchomości

Proszę wprowadzić poprawne imię i nazwisko
Proszę wprowadzić poprawny numer telefonu
Proszę wprowadzić poprawny adres e-mail

Mając na względzie ochronę Państwa danych osobowych i wypełniając obowiązki nałożone na nas przepisami prawa informujemy, że wskazane w formularzu przez Państwa dane osobowe przetwarzane będą na podstawie wyrażonej zgody. Mają Państwa prawo dostępu do swoich danych osobowych i ich poprawiania. Podanie danych osobowych jest dobrowolne.

Proszę zaznaczyć wymagane zgody
Proszę zaznaczyć wymagane zgody
Proszę zaznaczyć wymagane zgody

Informujemy, że Państwa zgoda może zostać cofnięta w dowolnym momencie przez wysłanie wiadomości e-mail na nasz adres biuro@oto-oto.pl spod adresu, którego zgoda dotyczy. Informujemy, że nie jesteście Państwo profilowani. Państwa dane nie będą przekazywane poza EOG ani udostępniane organizacjom międzynarodowym.

Zawiadamiamy, że administratorem Państwa danych osobowych wskazanych w powyższym formularzu jest OTO NIERUCHOMOŚCI Grzegorz Niewczas.

Klauzula informacyjna RODO

Rozwiąż równanie:
30 9
Niepoprawny wynik