Mieszkanie na sprzedaż Wrocław, Stare Miasto, Szczepin, Długa

100.00 m²
4 pokoje
5 piętro
17 990,00 zł/m2
OTO-MS-30957

1 799 000 zł

Mieszkanie na sprzedaż

Szczegóły oferty

Symbol oferty OTO-MS-30957
Powierzchnia 100,00 m²
Powierzchnia balkonów/tarasów 45,00 m²
Liczba pokoi 4
Rodzaj budynku nowe budownictwo
Technologia budowlana silikat
Standard
Opłaty w czynszu administracja, CO, Części wspólne, fundusz remontowy, monitoring, Winda, woda, woda/ryczałt na wodę, wywóz nieczystości, wywóz śmieci, zaliczka na fundusz remontowy
Opłaty wg liczników CO, prąd, woda, Woda ciepła, Woda zimna
Piętro 5
Liczba pięter w budynku 7
Garaż w budynku
Stan lokalu deweloperski
Okna PCV 3 szyby, ciepły montaż
Instalacje nowe
Balkon jest
Liczba balkonów 1
Liczba tarasów 1
Rok budowy 2025
Plac zabaw tak
Dojazd ASFALTOWA
Otoczenie centrum miasta
Ogrzewanie miejskie
Alarm tak
Winda tak
Liczba wind 1
Tarasy taras
Usytuowanie narożne
Drzwi antywłamaniowe tak
Rolety antywłamaniowe tak
Filip Kociołek

Filip Kociołek

Specjalista ds.nieruchomości

Napisz wiadomość Więcej ofert

Opis nieruchomości

Gotowe do końca roku!/ 4 pokoje/ Apartament z tarasem 60 m2/ Zielone osiedle/ Ogrzewanie miejskie/ Winda/ Wygodna komunikacja/ Okazja/ Blisko centrum/ Narożne/ Różne układy/ Możliwość zakupu miejsc postojowych

Posiadam w sprzedaży mieszkania na różnych piętrach oraz w różnym metrażu zarówno na tej inwestycji jak i w całym Wrocławiu. Zadzwoń i umów się na spotkanie!

Kupujący nie płaci prowizji oraz podatku PCC.


Największe atuty inwestycji:
- tereny rekreacyjne: Park Polana Popowicka, Park Zachodni, tereny spacerowe wzdłuż rzeki Odry
- pełna infrastruktura
- osiedle pełne zieleni - wewnętrzne dziedzińce pełne drzew, krzewów, kwiatów i ozdobnych gatunków traw
- nowoczesny transport: świeżo wybudowana linia tramwajowa
- C.H. Magnolia w bliskiej odległości

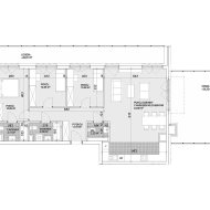
Mieszkanie o powierzchni około 100 m2 składa się z:

- pokoju dziennego z aneksem kuchennym
- trzech sypialni
- dwóch łazienek
- osobnego WC
- przedpokoju

Dodatkowo:
- taras na dachu 25 m2
- loggia 20 m2
- możliwość zakupu miejsca w hali garażowej i komórki lokatorskiej

Mieszkanie jest oddawane w stanie deweloperskim, do własnej aranżacji. 
Zdjęcia przedstawione w ofercie są wizualizacjami. 

✔︎ Zapewniam pomoc w uzyskaniu kredytu oraz wykończeniu mieszkania pod klucz.
✔︎ Kupując z nami nieruchomość zyskujesz 10% rabatu na wykończenie lub remont mieszkania*
✔︎ Możliwość bezpłatnej rezerwacji mieszkania.

Zapraszam do kontaktu: 
Filip Kociołek: tel. 881 474 221

@-mail: filip@oto-oto.pl

Pośrednik odpowiedzialny zawodowo za wykonanie umowy pośrednictwa: Grzegorz Niewczas (licencja nr: 21838)
oto-05560
Oferta została przygotowana na podstawie informacji uzyskanych od dewelopera. Informacje te są przez nas weryfikowane i sprawdzane, mogą jednak ulegać aktualizacji, w związku z czym powyższa oferta nie stanowi oferty handlowej w rozumieniu Kodeksu Cywilnego, a dane w niej zawarte mają jedynie charakter informacyjny.

Lokalizacja nieruchomości

Kalkulatory

Kalkulator kredytowy

Wysokość raty

PLN
%

Podobne oferty

Mieszkanie na sprzedaż

Wrocław, Stare Miasto

88 m2 4 Pokoje 2 piętro 18 750,00 zł/m2

Mieszkanie na sprzedaż

Wrocław, Stare Miasto

99 m2 4 Pokoje 2 piętro 13 542,51 zł/m2

Mieszkanie na sprzedaż

Wrocław, Stare Miasto

88 m2 4 Pokoje 2 piętro 17 682,65 zł/m2

Mieszkanie na sprzedaż

Wrocław, Stare Miasto

78 m2 4 Pokoje 2 piętro 17 981,99 zł/m2

Specjalista ds.nieruchomości

Proszę wprowadzić poprawne imię i nazwisko
Proszę wprowadzić poprawny numer telefonu
Proszę wprowadzić poprawny adres e-mail

Mając na względzie ochronę Państwa danych osobowych i wypełniając obowiązki nałożone na nas przepisami prawa informujemy, że wskazane w formularzu przez Państwa dane osobowe przetwarzane będą na podstawie wyrażonej zgody. Mają Państwa prawo dostępu do swoich danych osobowych i ich poprawiania. Podanie danych osobowych jest dobrowolne.

Proszę zaznaczyć wymagane zgody
Proszę zaznaczyć wymagane zgody
Proszę zaznaczyć wymagane zgody

Informujemy, że Państwa zgoda może zostać cofnięta w dowolnym momencie przez wysłanie wiadomości e-mail na nasz adres biuro@oto-oto.pl spod adresu, którego zgoda dotyczy. Informujemy, że nie jesteście Państwo profilowani. Państwa dane nie będą przekazywane poza EOG ani udostępniane organizacjom międzynarodowym.

Zawiadamiamy, że administratorem Państwa danych osobowych wskazanych w powyższym formularzu jest OTO NIERUCHOMOŚCI Grzegorz Niewczas.

Klauzula informacyjna RODO

Rozwiąż równanie:
23 8
Niepoprawny wynik