Mieszkanie na sprzedaż Wrocław, Krzyki, Ołtaszyn, Orawska

48.34 m²
2 pokoje
2 piętro
12 399,46 zł/m2
OTO-MS-31103

599 390 zł

Mieszkanie na sprzedaż
Nowa oferta

Szczegóły oferty

Symbol oferty OTO-MS-31103
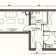
Powierzchnia 48,34 m²
Powierzchnia balkonów/tarasów 4,47 m²
Liczba pokoi 2
Rodzaj budynku nowe budownictwo
Technologia budowlana silikat
Standard
Opłaty w czynszu administracja, CO, Części wspólne, woda/ryczałt na wodę, wywóz nieczystości
Piętro 2
Liczba pięter w budynku 2
Garaż garaż podziemny
Stan lokalu deweloperski
Mies. czynsz admin. 530 PLN
Okna PCV
Instalacje nowe
Balkon jest
Liczba balkonów 1
Rok budowy 2025
Gaz brak
Woda jest
Ogrzewanie C.O. miejskie
Winda tak
Liczba wind 1
Usytuowanie jednostronne
Joanna Witka

Joanna Witka

Specjalista ds.nieruchomości
Nr licencji: 24779

Napisz wiadomość Więcej ofert

Opis nieruchomości

Mieszkanie znajduje się w spokojnej i zielonej okolicy, z dogodnym dostępem do komunikacji miejskiej. W pobliżu znajdują się sklepy, restauracje, szkoły, przedszkola oraz parki, co czyni lokalizację idealną do życia. 

Posiadam w sprzedaży mieszkania na różnych piętrach oraz w różnym metrażu zarówno na tej inwestycji jak i w całym Wrocławiu. Zadzwoń, by dowiedzieć się więcej!

Mieszkanie o powierzchni około 48,34 m2 składa się z:

- Pokoju dziennego z balkonem
- Sypialni 
- Osobnej kuchni z oknem,
- Łazienki
- Przedpokoju

PEŁEN ROZKŁAD!

Dodatkowo:

- Balkon - około 4,5m2

Termin realizacji: I kwartał 2026 (planowane zakończenie budowy w grudniu 2025r.)

Mieszkanie jest oddawane w stanie deweloperskim, do własnej aranżacji. Zdjęcia przedstawione w ofercie są wizualizacjami. 

✔︎ Zapewniam pomoc w uzyskaniu kredytu oraz wykończeniu mieszkania pod klucz.
✔︎ Kupując z nami nieruchomość zyskujesz 10% rabatu na wykończenie lub remont mieszkania*
✔︎ Możliwość bezpłatnej rezerwacji mieszkania.

Zapraszam do kontaktu: 

JOANNA WITKA: tel. 881 474 269

email: joanna@oto-oto.pl

Pośrednik odpowiedzialny zawodowo za wykonanie umowy pośrednictwa: Grzegorz Niewczas (licencja nr: 24779)
oto-D2E06

Oferta została przygotowana na podstawie informacji uzyskanych od dewelopera. Informacje te są przez nas weryfikowane i sprawdzane, mogą jednak ulegać aktualizacji, w związku z czym powyższa oferta nie stanowi oferty handlowej w rozumieniu Kodeksu Cywilnego, a dane w niej zawarte mają jedynie charakter informacyjny.

Lokalizacja nieruchomości

Kalkulatory

Kalkulator kredytowy

Wysokość raty

PLN
%

Podobne oferty

Mieszkanie na sprzedaż

Wrocław, Krzyki

41 m2 2 Pokoje 2 piętro 12 073,17 zł/m2

Mieszkanie na sprzedaż

Wrocław, Krzyki

57 m2 3 Pokoje 2 piętro 12 852,11 zł/m2

Mieszkanie na sprzedaż

Wrocław, Krzyki

63 m2 3 Pokoje 2 piętro 12 047,62 zł/m2

Mieszkanie na sprzedaż

Wrocław, Krzyki

50 m2 3 Pokoje 2 piętro 11 980,00 zł/m2

Specjalista ds.nieruchomości

Proszę wprowadzić poprawne imię i nazwisko
Proszę wprowadzić poprawny numer telefonu
Proszę wprowadzić poprawny adres e-mail

Mając na względzie ochronę Państwa danych osobowych i wypełniając obowiązki nałożone na nas przepisami prawa informujemy, że wskazane w formularzu przez Państwa dane osobowe przetwarzane będą na podstawie wyrażonej zgody. Mają Państwa prawo dostępu do swoich danych osobowych i ich poprawiania. Podanie danych osobowych jest dobrowolne.

Proszę zaznaczyć wymagane zgody
Proszę zaznaczyć wymagane zgody
Proszę zaznaczyć wymagane zgody

Informujemy, że Państwa zgoda może zostać cofnięta w dowolnym momencie przez wysłanie wiadomości e-mail na nasz adres biuro@oto-oto.pl spod adresu, którego zgoda dotyczy. Informujemy, że nie jesteście Państwo profilowani. Państwa dane nie będą przekazywane poza EOG ani udostępniane organizacjom międzynarodowym.

Zawiadamiamy, że administratorem Państwa danych osobowych wskazanych w powyższym formularzu jest OTO NIERUCHOMOŚCI Grzegorz Niewczas.

Klauzula informacyjna RODO

Rozwiąż równanie:
19 7
Niepoprawny wynik