Mieszkanie na sprzedaż Wrocław, Fabryczna, Maślice

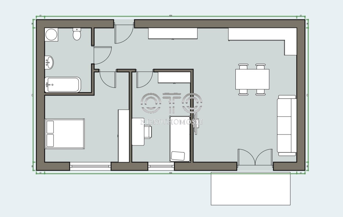
50.50 m²
3 pokoje
3 piętro
12 475,25 zł/m2
OTO-MS-30672

630 000 zł

Mieszkanie na sprzedaż

Szczegóły oferty

Symbol oferty OTO-MS-30672
Powierzchnia 50,50 m²
Powierzchnia użytkowa [m2] 50,50 m²
Powierzchnia balkonów/tarasów 5,00 m²
Liczba pokoi 3
Liczba sypialni 3
Rodzaj budynku nowe budownictwo
Technologia budowlana silikat
Standard
Opłaty w czynszu administracja, CO, Części wspólne, fundusz remontowy, gaz, ogrzewanie, sprzątanie, telewizja kablowa, Winda, woda, woda ciepła, woda/ryczałt na wodę, wywóz nieczystości, wywóz śmieci, zaliczka na fundusz remontowy
Opłaty wg liczników CO, gaz, prąd, woda, Woda ciepła, Woda zimna
Piętro 3
Liczba pięter w budynku 3
Stan lokalu deweloperski
Okna PCV
Instalacje nowe
Balkon jest
Liczba balkonów 1
Rok budowy 2026
Gaz tak - miejski
Woda ciepła - miejska
Dojazd ASFALTOWA
Ogrzewanie C.O. miejskie
Winda tak
Usytuowanie jednostronne
Drzwi antywłamaniowe tak
Filip Kociołek

Filip Kociołek

Specjalista ds.nieruchomości

Napisz wiadomość Więcej ofert

Opis nieruchomości

Gotowe na 1 kwartał 2026!/ Zielone osiedle / Ogrzewanie miejskie / Winda / Większy metraż po podłodze / Balkon

Posiadam w sprzedaży mieszkania na różnych piętrach oraz w różnym metrażu zarówno na tej inwestycji jak i w całym Wrocławiu. Zadzwoń i umów się na spotkanie!

Kupujący nie płaci prowizji oraz podatku PCC.


Największe atuty inwestycji:
- tereny rekreacyjne: Park Maślicki, Staw Królewiecki, Kąpielisko Królewiecka, liczne ścieżki rowerowe
- C.H. Pasaż Królewiecki w bliskiej odległości
- dodatkowo płatne miejsca w hali garażowej

Piętrowe mieszkanie o powierzchni około 50 m2 składa się z:

- pokoju dziennego z aneksem kuchennym
- dwóch sypialni
- łazienki z wc
- przedpokoju

Dodatkowo:
- balkon

Mieszkanie jest oddawane w stanie deweloperskim, do własnej aranżacji. 
Zdjęcia przedstawione w ofercie są wizualizacjami. 

✔︎ Zapewniam pomoc w uzyskaniu kredytu oraz wykończeniu mieszkania pod klucz.
✔︎ Kupując z nami nieruchomość zyskujesz 10% rabatu na wykończenie lub remont mieszkania*
✔︎ Możliwość bezpłatnej rezerwacji mieszkania.

Zapraszam do kontaktu: 
Filip Kociołek: tel. 881 474 221

@-mail: filip@oto-oto.pl

Pośrednik odpowiedzialny zawodowo za wykonanie umowy pośrednictwa: Grzegorz Niewczas (licencja nr: 21838)
oto- 4219
Oferta została przygotowana na podstawie informacji uzyskanych od dewelopera. Informacje te są przez nas weryfikowane i sprawdzane, mogą jednak ulegać aktualizacji, w związku z czym powyższa oferta nie stanowi oferty handlowej w rozumieniu Kodeksu Cywilnego, a dane w niej zawarte mają jedynie charakter informacyjny.

Lokalizacja nieruchomości

Kalkulatory

Kalkulator kredytowy

Wysokość raty

PLN
%

Podobne oferty

Mieszkanie na sprzedaż

Wrocław, Fabryczna

46 m2 2 Pokoje 2 piętro 10 824,30 zł/m2

Mieszkanie na sprzedaż

Wrocław, Fabryczna

60 m2 3 Pokoje 2 piętro 11 816,67 zł/m2

Mieszkanie na sprzedaż

Wrocław, Fabryczna

61 m2 3 Pokoje 2 piętro 11 726,38 zł/m2

Mieszkanie na sprzedaż

Wrocław, Fabryczna

71 m2 4 Pokoje 2 piętro 11 267,61 zł/m2

Specjalista ds.nieruchomości

Proszę wprowadzić poprawne imię i nazwisko
Proszę wprowadzić poprawny numer telefonu
Proszę wprowadzić poprawny adres e-mail

Mając na względzie ochronę Państwa danych osobowych i wypełniając obowiązki nałożone na nas przepisami prawa informujemy, że wskazane w formularzu przez Państwa dane osobowe przetwarzane będą na podstawie wyrażonej zgody. Mają Państwa prawo dostępu do swoich danych osobowych i ich poprawiania. Podanie danych osobowych jest dobrowolne.

Proszę zaznaczyć wymagane zgody
Proszę zaznaczyć wymagane zgody
Proszę zaznaczyć wymagane zgody

Informujemy, że Państwa zgoda może zostać cofnięta w dowolnym momencie przez wysłanie wiadomości e-mail na nasz adres biuro@oto-oto.pl spod adresu, którego zgoda dotyczy. Informujemy, że nie jesteście Państwo profilowani. Państwa dane nie będą przekazywane poza EOG ani udostępniane organizacjom międzynarodowym.

Zawiadamiamy, że administratorem Państwa danych osobowych wskazanych w powyższym formularzu jest OTO NIERUCHOMOŚCI Grzegorz Niewczas.

Klauzula informacyjna RODO

Rozwiąż równanie:
28 1
Niepoprawny wynik